Bardfield Centre, Braintree, CM7
£500,000 Freehold
8
9 Photos
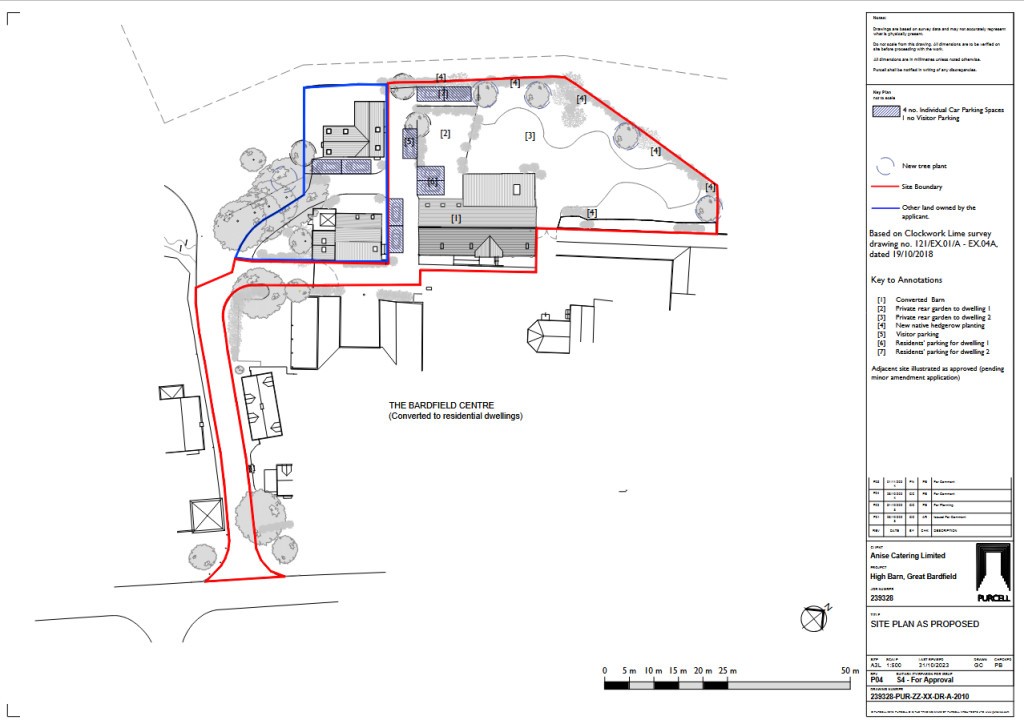
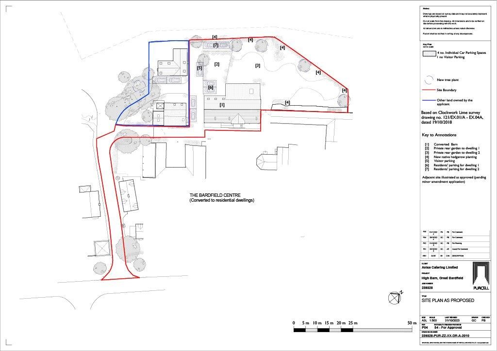
BARN CONVERSION - 4400 SQ. FT Grade II Listed barn with planning permission to convert into TWO 4 bed houses.
24/02436/FUL & 24/02437/LBC
Summary
BARN CONVERSION - 4400 SQ. FT Grade II Listed barn with planning permission to convert into TWO 4 bed houses. 24/02436/FUL & 24/02437/LBCKey features
- 4400 SQ. FT Barn
- Planning Permission granted
- Two four bedroom houses
- 24/02436/FUL & 24/02437/LBC
- Beautiful views
- Viewings available by appointment
Full Description
DESCRIPTION High Barn - A Grade II listed building, once owned by Henry VIII and bequeathed to Anne of Cleves.More recent times it has been a poplar wedding venue and before that a music venue hosting performances from the likes of Matt Cardle, Ultravox lead singer Midge Ure and Brit Award winner Ed Sheeran and Jules Holland.
Situated in the picturesque village of Great Bardfield, with fantastic views out to the rear over fields.
PLANNING PERMISSION WITH BRAINTREE COUNCIL as follows
- 4400 SQ. FT BARN: Now with planning to split into two semi-detached dwellings.
Barn Conversion:
24/02436/FUL:
24/02437/LBC:
Viewings available by appointment
AGENTS NOTES Misrepresentations Act 1967: These details are prepared as a general guide only and should not be relied upon as a basis to enter a legal contract or to commit expenditure. Any interested party should rely solely on their own surveyor, solicitor or other professionals before committing themselves to any expenditure or other legal commitments. If any interested party wishes to rely on any information from the agent, then a request should be made and specific written confirmation can be provided. The agent will not be responsible for any verbal statement made by any member of staff, as only a specific written confirmation should be relied upon. The agent will not be responsible for any loss other than when specific written confirmation has been requested. The sales particulars may change in the course of time and any interested party is advised to make a final inspection of the property prior to exchange of contracts.
Property Misdescriptions Act 1991: The agent has not tested any apparatus, equipment, fixture, fittings or services and does not verify they are in working order, fit for their purpose, or within ownership of the sellers, therefore the buyer must assume the information given is incorrect. Neither has the agent checked the legal documentation to verify legal status of the property. A buyer must assume the information is incorrect until it has been verified by their own solicitors. Nothing concerning the type of construction, condition of the structure or its surroundings is to be implied from the photograph, artist's impression or plans of the property.
In order to comply with Anti Money Laundering (AML) regulations, Estate Agents are required to carry out identity checks and due diligance on all prospective purchasers. Please note that a memorandum of sale cannot be sent to conveyancers until the checks have been completed.
Viewing/Disclaimer
Please contact us on 01376 551010 if you wish to arrange a viewing appointment for this property or require further information.Bartlett Hammond - CM7 endeavour to maintain accurate depictions of properties in Virtual Tours, Floor Plans and descriptions, however, these are intended only as a guide and purchasers must satisfy themselves by personal inspection.

